- Opis
-
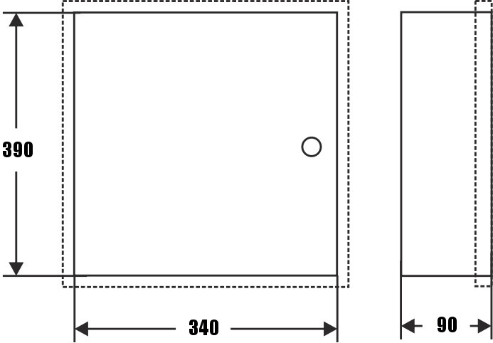
SZAFA MULTIMEDIALNA AWO806Z 390x340x90

NAJWAŻNIEJSZE CECHY
- Konstrukcja natynkowa.
- Zdejmowane drzwiczki (wygodna instalacja okablowania i innych urządzeń).
- Płyta montażowa z tworzywa PCV (łatwy i szybki montaż dodatkowego wyposażenia).
- W komplecie adapter do montażu gniazd typu keystone RJ45, złączy F oraz złączy światłowodowych SC/APC.
- Duża ilość przetłoczeń otworów do wprowadzenia przewodów i mocowania skrzynki w otworze.
- Obudowa zamykana na klucz.
Przeznaczenie
Natynkowe Teletechniczne Obudowy Mieszkaniowe (w skrócie TOM) zostały przygotowane w związku z wejściem w życie Rozporządzenia Ministra Transportu, Budownictwa i Gospodarki Morskiej z 2012r (Dz. U. Z 2012 r.) Zgodnie z tym dokumentem Teletechniczna Obudowa Mieszkaniowa musi być montowana w budynkach użyteczności publicznej i budynkach zamieszkania zbiorowego.
Natynkowa Teletechniczna Obudowa Mieszkaniowa powinna zapewnić możliwość prostego (bez konieczności wymiany całej infrastruktury okablowania) przyłączenia przedsiębiorców telekomunikacyjnych do instalacji telekomunikacyjnej budynku na zasadzie równego dostępu.
Przykładowa konfiguracja montażu

Opis produktu
Natynkowe teletechniczne obudowy mieszkaniowe pozwalają na integrację elementów sieci komputerowej, telefonicznej, telewizyjnej (RTVSAT), światłowodowej oraz innych instalacji teletechnicznych. Służy do tego łatwo demontowany adapter z miejscem na gniazda typu „keystone” (montaż złącz RJ45, oraz złącz „F”), dodatkowe otwory pod złącza „F” , otwory pod złącza światłowodowe SC/APC (pojedyncze i podwójne) oraz otworowanie do montażu osprzętu o standardzie 45x45mm ( np.gniazdo elektryczne) dotyczy AWO805Z oraz AWO806Z.
W górnej części na tylnej ściance można zamontować dodatkowe element tj. rozgałęźniki RTVSAT. Montaż tych elementów również jest bardzo wygodny i szybki, gdyż dołączona płyta PCV pozwala na montaż urządzeń za pomocą wkrętów, bez konieczności wcześniejszego wykonania otworów.
Specyfikacja techniczna
Wymiary wewnętrzne W=340, H=390, D=90 zewnętrzne W1=350, H1=400, D1=115mm [mm, +/-2] Waga netto/brutto 4,21kg / 4,46kg [+/-0,1kg] Wykonanie blacha DC01, grubość 1,0mm, zabezpieczenie antykorozyjne, kolor RAL 9003 Zastosowanie do wewnątrz Zamykanie zamek Gwarancja 2 lata od daty produkcji 
W skład zestawu wchodzi
- SZAFA MULTIMEDIALNA 390x340x90 AWO806Z (nr. kat 10880)
- Gwarancja
- Paragon lub faktura VAT
- Najważniejsze cechy
-
Informacje dodatkowe
Numer katalogowy 10880 Model AWO806Z Producent PULSAR Krótki opis Nie Gwarancja 24 miesiące Link do strony producenta brak danych Typ włókna brak danych Ilość włókien brak danych Rodzaj włókna brak danych - Recenzje
-
Recenzje klientów
Opinia „SZAFA MULTIMEDIALNA 390x340x90 AWO806Z”
- Tagi produktu
-
Tagi produktu
Użyj spacji aby rozdzielić tagi, apostrofów (’) aby wpisać frazy.
- Pliki do pobrania
-
Pliki do pobrania
Karta katalogowa

Zostań instalatorem Bezpieczny+


Kamery IP Kenik – zobacz więcej

Szafy rackowe GetFort – profesjonalna jakość w dobrej cenie


